中原华曦府143㎡现代意式风
作者: 全案设计一中心
浏览次数: 1682次
发布时间: 2026/4/13 下午3:13:39
我要做同款
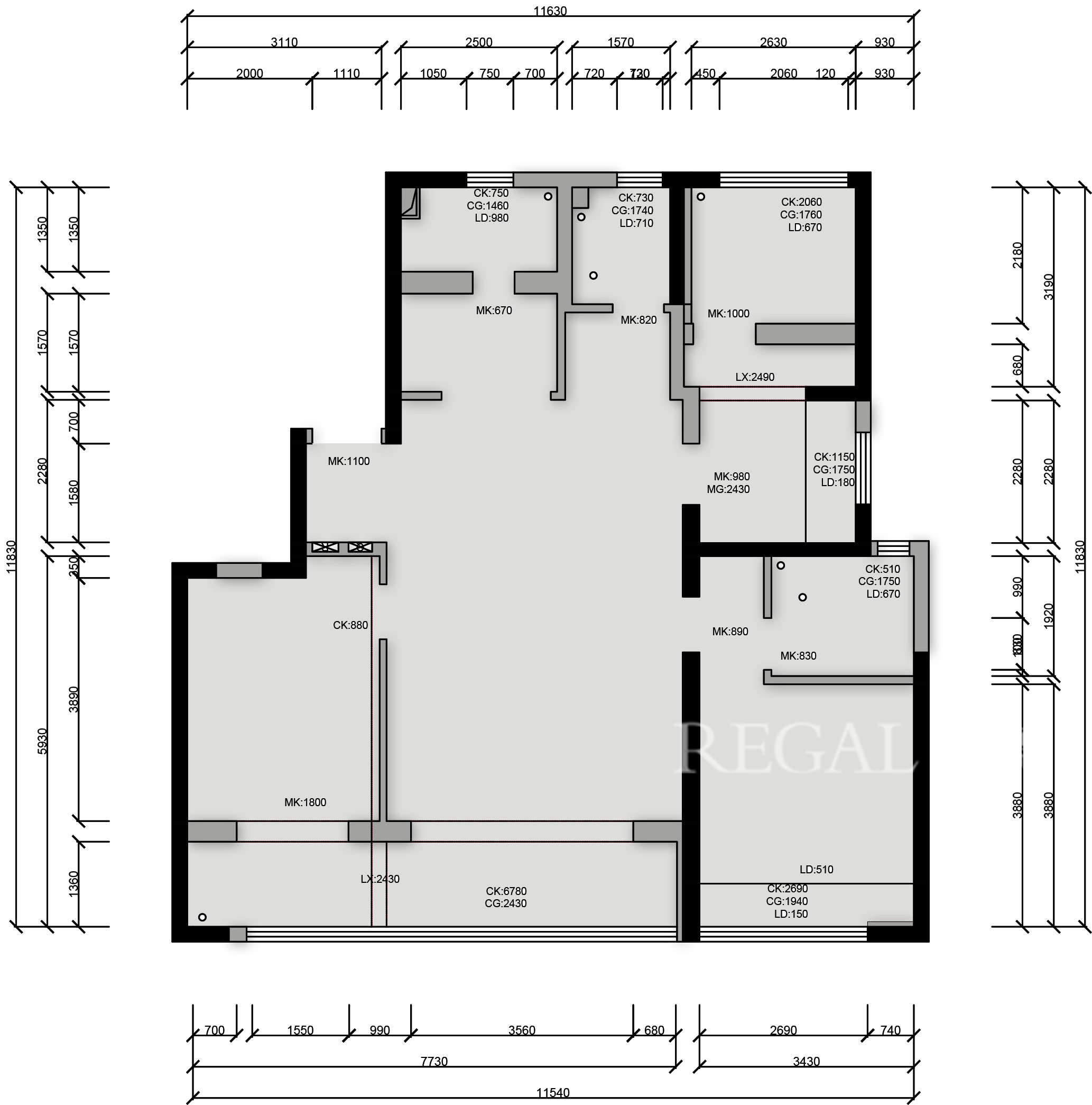
户型分析
客厅
客餐厨一体化:打破传统墙体隔断,客厅、餐厅、厨房流畅衔接,最大化利用采光与空间感,适合家庭互动与社交。



书房
卧室加书房整面墙木饰面柜体、顶天立地柜,将储物功能隐藏,保持视觉整洁。

厨房
客餐厨开放通透,动静分区,保障生活舒适度。

卫生间
干湿分离卫浴设计,整体以「无主灯 + 岩板 + 极简柜体」为核心,打造出通透、整洁、高级的居家卫浴体验,同时兼顾了实用性与颜值。

相关案例查看更多
中原华曦府143㎡现代轻奢风
中原华曦府143㎡现代轻奢风
2026/4/13 上午7:51:53
隐奢于雅,自然为境:奢华感不靠堆砌,而是通过材质的原始肌理、精妙的光影控制和留白艺术来含蓄表达。
人文滋养,诗意栖居:将东方美学、艺术收藏融入空间,使其不仅是居所,更是精神容器。吊顶中也巧妙的结合“天圆地方”的哲学思考。
自然静奢,身心热爱:更强调宁静、治愈的氛围。运用微水泥、木质等营造包裹感,色彩更统一柔和,身心在此得到彻底的安放。
中原华曦府143㎡现代中古风
中原华曦府143㎡现代中古风
2026/4/12 下午10:30:03
该户型采用「自然极简 + 功能洄游」的设计逻辑,以暖调米白为基底,融入浅木色肌理,让空间在松弛感中传递温和质感。入户区用嵌入式柜 + 悬浮换鞋台 + 氛围灯带,实现收纳与仪式感的平衡;客餐厨采用 LDK 一体化布局,弧形吊顶与线性灯弱化边界,餐厅兼作社交与操作界面,玻璃移门可灵活切换开放 / 封闭模式。
华曦府143㎡现代简约风
华曦府143㎡现代简约风
2026/4/13 上午3:46:12
本案设计整体采用现代意识风格为设计思路。全房采用明装无主灯的形式设计营造柔和高级氛围。
中原华曦府143㎡现代简约
中原华曦府143㎡现代简约
2026/4/13 下午4:48:42
客餐厨一体化的开放布局,去掉冗余隔断,让空间显大且互动性强
中海云著湖居195㎡意式轻奢风
中海云著湖居195㎡意式轻奢风
2026/4/12 下午11:32:08
本案式一套精装修项目,结合现有硬装,设计师采用意式轻奢风格从以下3个方便来做布局
空间布局:客餐一体化开放式设计,消弭区域隔断,让空间通透感、开阔感翻倍。
材质质感:暖棕木饰面 + 金属(茶几 / 吊灯 / 柜框)+ 光亮石材地面 + 局部大理石纹理,多重材质叠加出高级轻奢感。
采光与视野:超大落地窗 + 柔纱帘,既引入充足自然采光,又柔化光线;同时能直接俯瞰城市景观,提升空间氛围感。
越秀天悦江湾143㎡意式轻奢风
越秀天悦江湾143㎡意式轻奢风
2026/4/13 下午12:47:24
“简而不减,质藏于形” 以意式极简为内核,借大面积落地窗引天光入境,让光影流动勾勒空间纯粹轮廓。
空间上以利落直线划分功能场域,隐形收纳系统消融冗余,浅灰基底交织原木肌理与哑光岩板,金属饰条作点睛之笔,摒弃繁复装饰,于材质本真与比例平衡中传递静谧质感,既契合现代起居的实用诉求,更彰显克制而高阶的居住美学。
兰溪府160㎡意式轻奢风
兰溪府160㎡意式轻奢风
2026/4/11 下午8:24:52
本案以意式优雅融合老钱风沉稳质感,入户玄关背景墙奠定雅致基调,全房无主灯设计营造柔和高级氛围。
兰溪府185㎡意式轻奢风
兰溪府185㎡意式轻奢风
2026/4/13 上午10:32:36
公共区域客餐厨一体化布局,光线与视线自由流通,营造互动空间。
